Exploring concepts and ideas of the built environment in relation to the users and their needs. Thinking holistically.

Multi-Basement

Year: 2025

Type: Private Commission

Status: Built

Area: 22 sqm

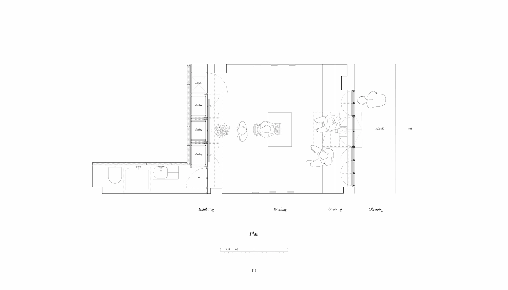
The ‘Multi-Basement’ is the reuse of a semi-underground basement located in Athens, in the neighborhood of Pangrati. The space is part of a Polikatoikia building from the 1970s, a typology that spread throughout the city from the 1950s to the 1980s and shaped the city center as we know it today. Neglected spaces like this are common in the city center. Although small, they have a strong connection to the urban fabric. Even though most of these spaces are directly connected to the street, they are often used as warehouses and remain closed off most of the time. Due to the lack of available space in the city center, this project reimagines these urban pockets, offering a new interpretation and potential for their use through a flexible and sustainable design approach. The main objective of the design approach is to restore and reuse the existing materials of the space, such as the terrazzo floor and the ‘Dionysos’ marbles— a technique that is fading over time and a material that should not be wasted. The additions that define the new function of the space are metal cabinets and stairs. These elements provide flexibility, allowing the space to adapt to the user’s needs, and durability, ensuring longevity over time.